W dniu 10 października 2025 r. wystąpiła awaria techniczna platformy zakupowej Zamawiającego, która mogła spowodować utrudnienia w dostępie do kont wykonawców, korespondencji oraz ofert złożonych w okresie od 13 sierpnia do 10 października 2025 r. Informujemy, że wszystkie oferty i wiadomości przesłane w tym czasie za pośrednictwem platformy zostały zachowane w bazie danych Zamawiającego. Wykonawcy, którzy rejestrowali się na platformie w tym okresie, mogą utracić dostęp do swoich kont i będą proszeni o ponowną rejestrację. Przepraszamy za powstałe niedogodności.

Postępowanie ZP/2501/34/19
Z dnia: 2019-03-19, Termin składania ofert: 2019-04-05 10:00

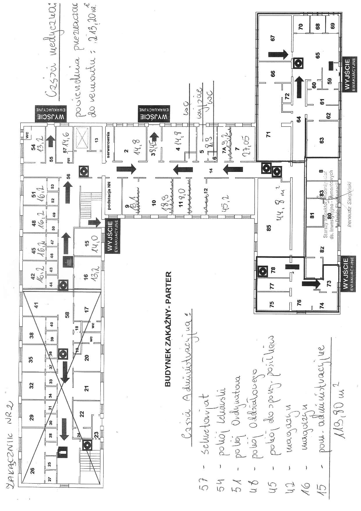
Roboty budowlane pn. Przebudowa Stacji Dializ w ramach zadania Modernizacja i doposażenie oddziałów szpitalnych


Części postępowania:
  • 1. Roboty budowlane pn. Przebudowa Stacji Dializ